

The Corporate Park
For more
information about
The Corporate Park at
ArundelPreserve:
Visit www.copt.com
or contact us at 443-285-5400.


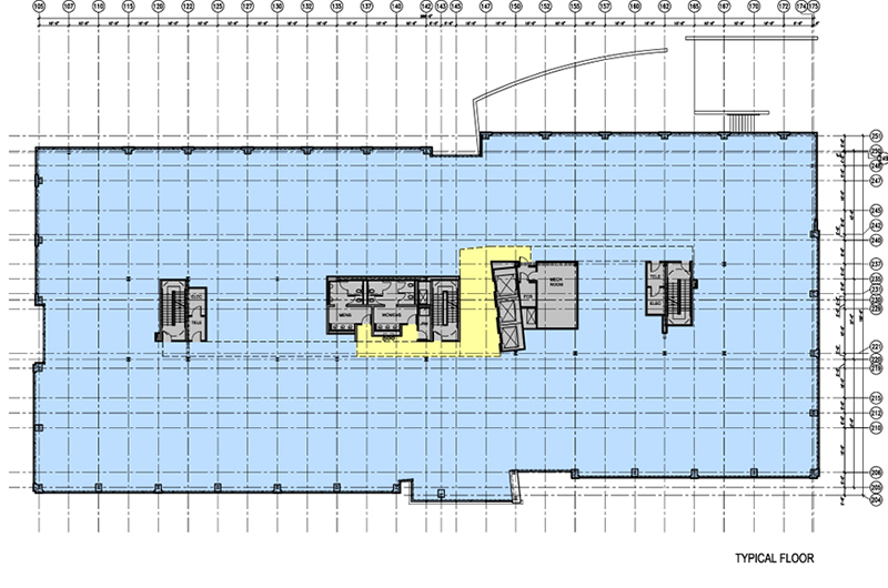
NOW LEASING: 153,000 SF OFFICE BUILDING
7740 Milestone Parkway, Hanover, MD 21076
The Corporate Park at ARUNDELPRESERVE is a 63-acre, master-planned office park, located within one of the largest mixed-use projects in Anne Arundel County. Situated in the heart of the Baltimore-Washington Corridor, the Park will provide excellent sites for corporate headquarters, multi-tenant office space, and build-to-suit opportunities. The Corporate Park will feature distinctive buildings on wooded sites, abundant landscaping, outdoor gathering areas, and signature artwork. All buildings in the Park feature sustainable design elements and seek minimum LEED Silver Certification.
Location and Amenities:
- First phase of three-building campus within The Corporate Park at ARUNDELPRESERVE
- Prominent location on heavily-wooded and landscaped site fronting on Milestone Parkway
- Located at the intersection of MD Route 295 (Baltimore-Washington Parkway) and MD Route 100 in Anne Arundel County, MD
- 10 minutes to Baltimore-Washington International (BWI) Airport and 30 minutes to Washington Beltway (I-495)
- One mile to Arundel Mills Mall
Building Highlights:
- Five-story, 153,000-SF Class-A office building
- Ready for occupancy
- Free surface parking at 4/1,000 SF
- State-of-the-art energy management system
- Highly-appointed common-area finishes
- Architectural precast and thermal glass exterior
- Fiber optics available
- Nine-foot ceiling heights
- Loading dock
- On-site property management by COPT Property Management Services, rated "Best in Industry" in customer service by CEL & Associates
- LEED Gold-Certified




